Skip to main content
Scott Sharpe
SOLD
$339,000
Date 12/16/2025

7620 Grand Avenue
Kansas City, MO 64114

Single Family
Residential
3
Beds
1
Baths
+
1 Half
2,006
Sq. Ft.
0.17
Acre Lot
Home> Missouri> Kansas City> 64114
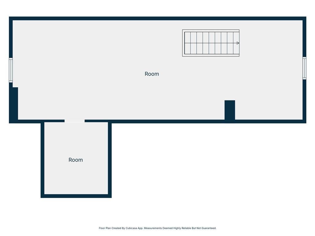
Welcome to this terrific 1.5 Story home and now even better with lots of improvements!! All work on this home recently and during this ownership has been done with great attention to detail. First off, the home is conveniently located near all the great shops, restaurants and lifestyle you seek from the Waldo neighborhood. Just look at the great features in this home all ready for its new owner. Wood floors in the living room with built-in shelving. Freshly painted interior. Vinyl tilt-in windows throughout the home. Updated bathrooms. Take note of the home's spacious kitchen with granite countertops, custom cabinets, pantry, LVP flooring, and the modern beadboard ceiling. All appliances stay with the home. A cozy sunroom at the rear of the home adds extra living space and walks out to the backyard deck and fenced yard with storage shed. The ENTIRE second floor running the length of the home (39x14) boasts a BRAND NEW WOOD PLANK CEILING just installed, and is complete with a 9x8 walk-in closet. It is perfect for a primary bedroom, artist studio or office. PLUS, during the sellers' ownership, there has been all new plumbing installed in the basement, top quality HVAC, exterior paint, updating to both bathrooms, and lovingly maintained.
2578352
Residential - Single Family, Traditional, 1 Story
3
1 Full/1 Half
1948
Jackson
0.17 Acres
Public Water
1.5
Frame
Public Sewer
Loading...
Loading...

Estimated Payment:

Principle & Interest
Taxes
Insurance
%
%
The information displayed on this page is confidential, proprietary, and copyrighted information of Heartland Multiple Listing Service, Inc. (Heartland MLS). Copyright 2022, Heartland Multiple Listing Service, Inc. Heartland MLS do not make any warranty or representation concerning the timeliness or accuracy of the information displayed herein. In consideration for the receipt of the information on this page, the recipient agrees to use the information solely for the private non-commercial purpose of identifying a property in which the recipient has a good faith interest in acquiring.
This content last refreshed on 5/10/2026 4:15 PM CST. Some properties which appear for sale on this web site may subsequently have sold or may no longer be available.
Information is deemed reliable but is not guaranteed.