Skip to main content
Scott Sharpe
FOR SALE
$240,000

11601 E 75th Street
Raytown, MO 64138

Single Family
Residential
3
Beds
2
Baths
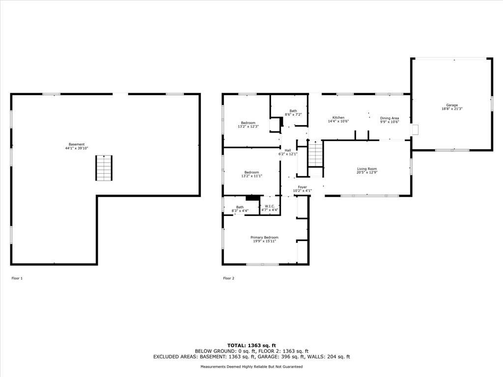
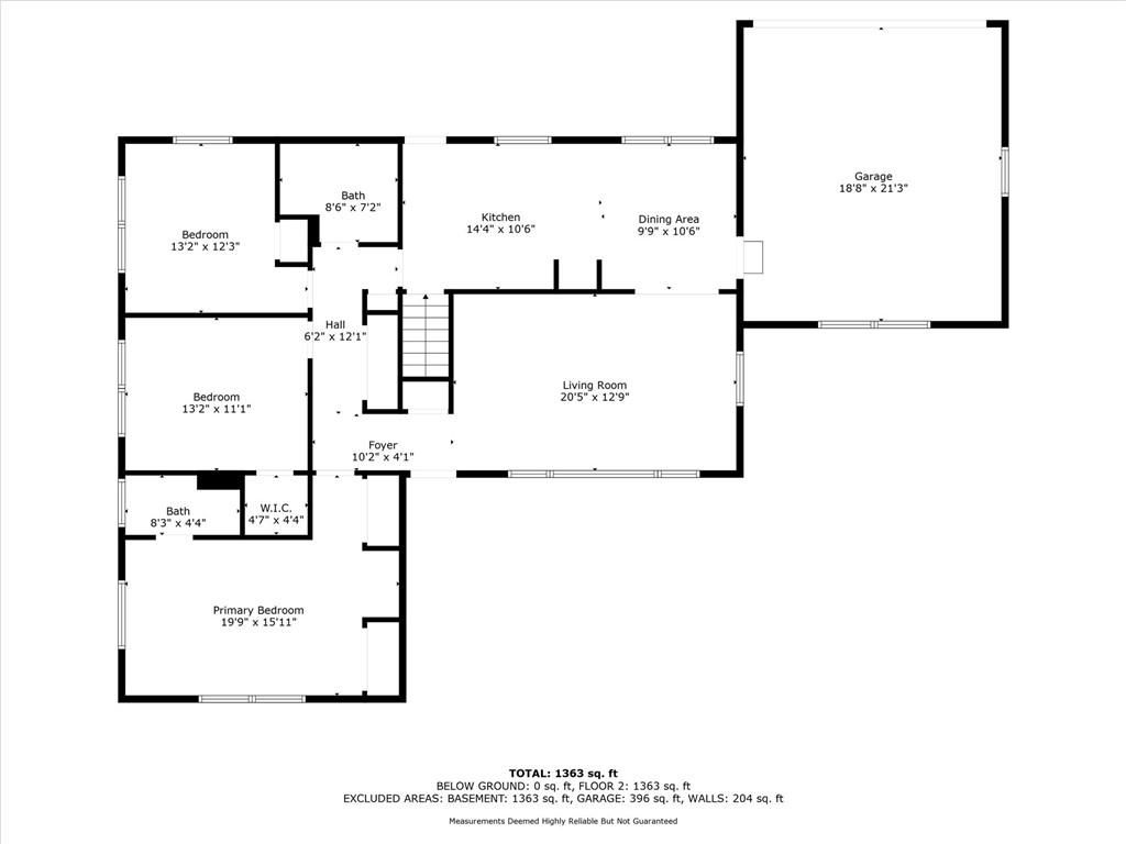
1,868
Sq. Ft.
0.83
Acre Lot
Home> Missouri> Raytown> 64138
Welcome to this spacious brick-front ranch in the heart of Raytown. Set on a large corner lot with mature trees, this home offers timeless curb appeal and plenty of outdoor space to enjoy. A side-entry garage and wide driveway add convenience, while the expansive yard provides room for gardening, play, or entertaining. Inside, the home features fresh updates with neutral tones and abundant natural light. The living room flows into a bright kitchen complete with white cabinetry, modern backsplash, and stainless steel appliances. Bedrooms are comfortably sized, with the primary suite offering its own private bath and ample closet space. With its thoughtful layout and generous lot, this home blends comfort and practicality near schools, shopping, and commuter routes. Schedule your showing today and come see all that this gem has to offer!
2574434
Residential - Single Family, Other
3
2 Full
1963
Jackson
0.83 Acres
Public Water
Wood Siding
Public Sewer
Loading...
The scores below measure the walkability of the address, access to public transit of the area and the convenience of using a bike on a scale of 1-100

Walk Score

Transit Score

Bike Score

Loading...
The information displayed on this page is confidential, proprietary, and copyrighted information of Heartland Multiple Listing Service, Inc. (Heartland MLS). Copyright 2022, Heartland Multiple Listing Service, Inc. Heartland MLS do not make any warranty or representation concerning the timeliness or accuracy of the information displayed herein. In consideration for the receipt of the information on this page, the recipient agrees to use the information solely for the private non-commercial purpose of identifying a property in which the recipient has a good faith interest in acquiring.
This content last refreshed on 11/13/2025 2:30 PM CST. Some properties which appear for sale on this web site may subsequently have sold or may no longer be available.
Information is deemed reliable but is not guaranteed.